All apartments

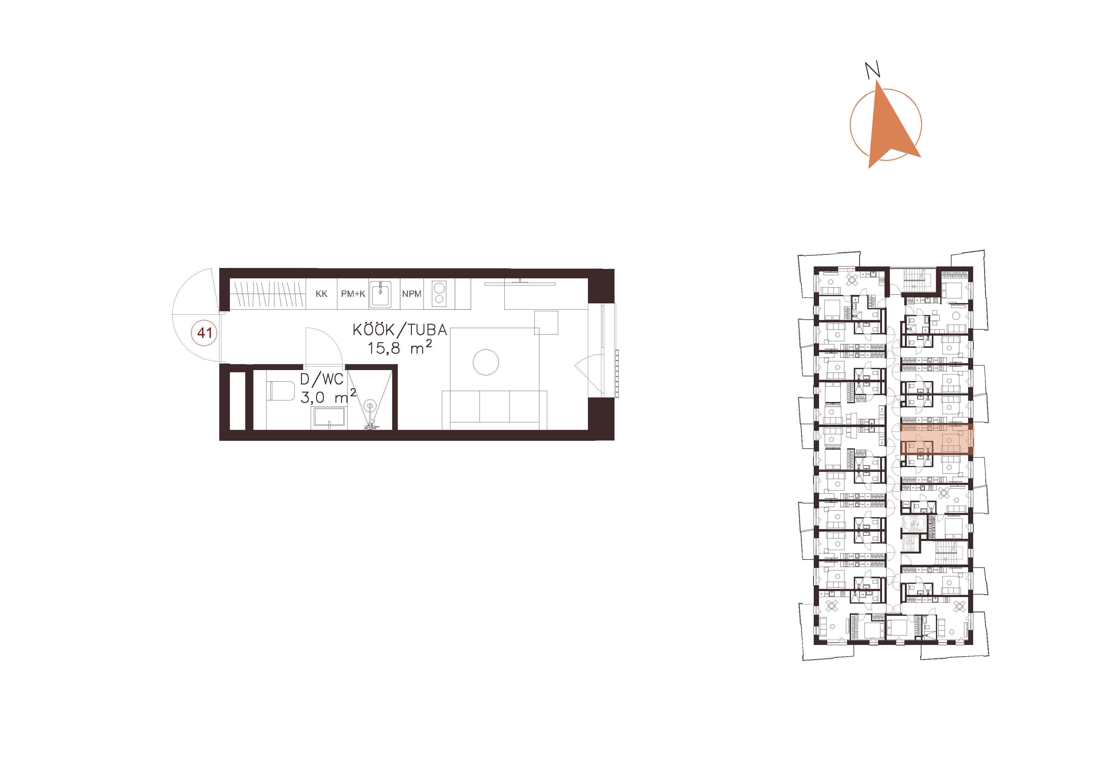
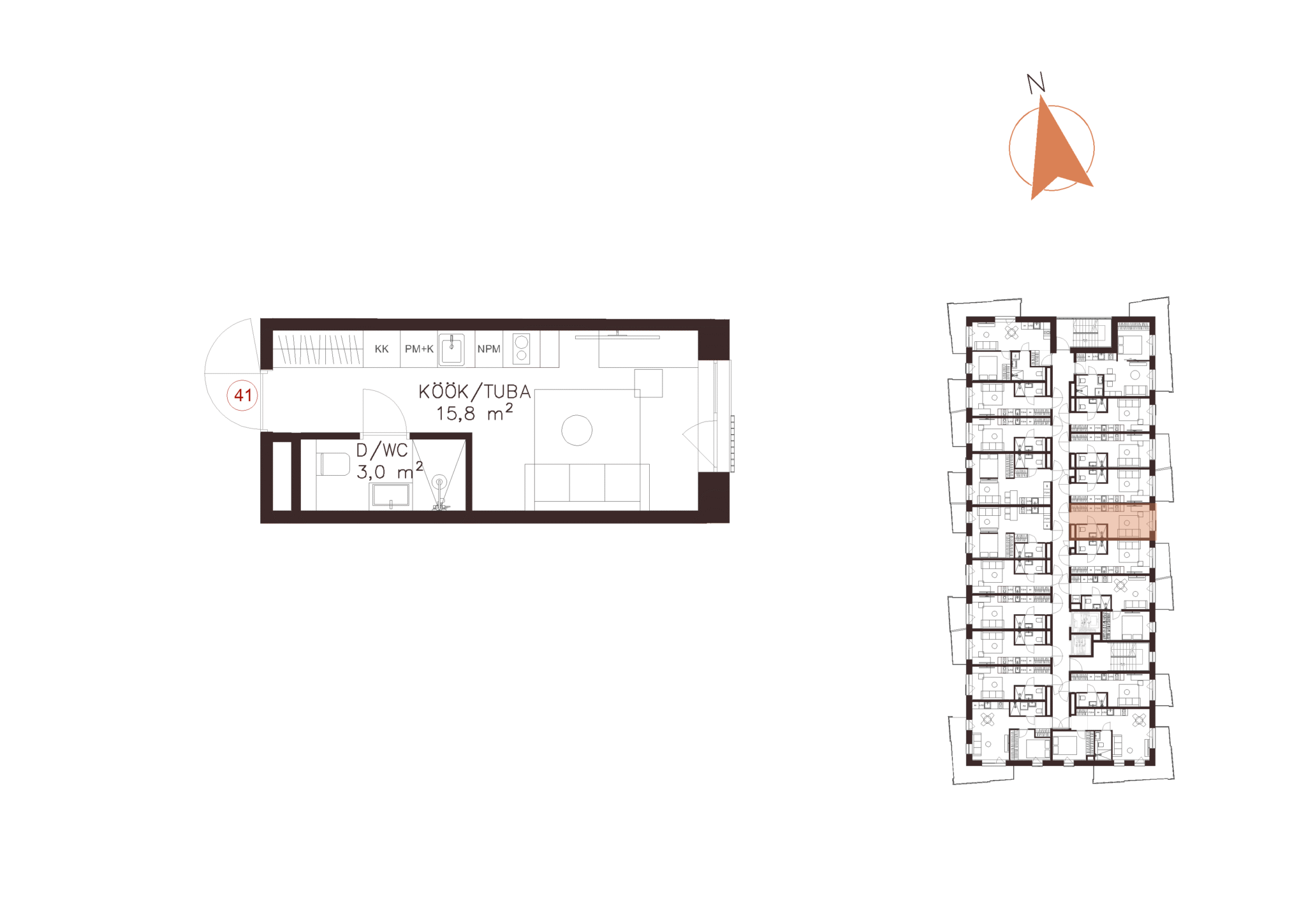
Apartment 41 (KK)

Floor 5
Number of rooms 1
Size m2 18.8
Balcony m2
Morning sun Yes
Price Reserved

Storage rooms from EUR 4,700
Sales price includes the right to park in the parking lot in front of the building.